2019年,新的开始,新的起点

顾朝海环科院

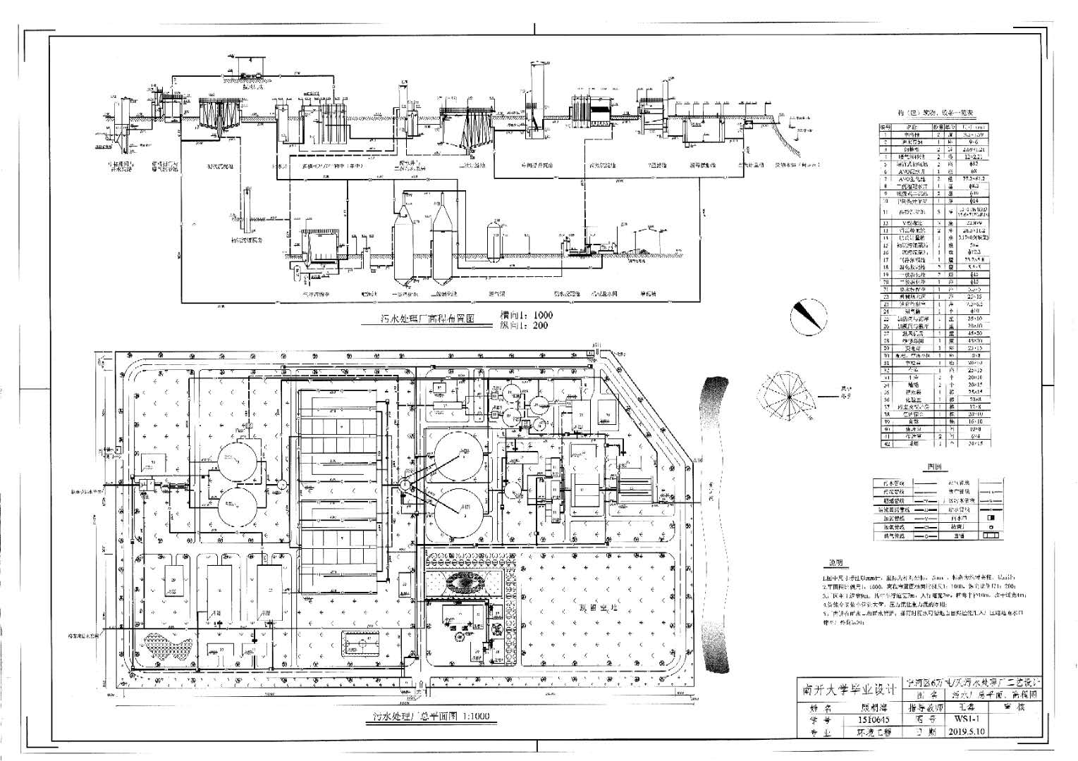
【毕业设计图纸】

成果类型:笔记类
成果简介:在2015级环境科学与工程学院本科毕业论文(设计)中,顾朝海同学的毕业设计“天津市宁河区6万吨/天污水处理厂工艺设计”针对实际问题展开,设计过程认真严谨,选取的工艺先进适用,在设计过程中充分考虑了实际情况和设计规范,共绘制了相关工艺图纸14张,在答辩中以排名第一申报校级优秀设计。
所属人简介:顾朝海同学,在学期间,潜心学习,学分绩专业排名第一,多次获国家奖学金、南开大学综合一等奖学金、三好学生等荣誉、大一时注册成为天津市志愿者,参加了中国扶贫基金会主办的爱心包裹志愿活动,担任小组长,带领队员完成了长达6周的劝募活动,本人及多名组员均获一星志愿者证书;入学不久他就递交了入党申请书,并努力学习党的理论知识,经过两年的培养和考察,他从思想上逐渐成熟起来,牢固树立起了对马克思主义的信仰,对社会主义和共产主义的信念,于2017年12月加入中国共产党。

毕业设计图纸

毕业设计图纸

【返回首页】  【返回顶部】